Мы используем куки-файлы. Соглашение об использовании

Продается арендный бизнес, 309,1 м²

Площадь309,1 м²
Этаж1
Прибыль460 000 ₽/мес.
КатегорияТорговая площадь, свободное назначение, стрит ритейл и еще 1 категория...
Отчёт о привлекательности объектаУзнайте, насколько помещение и район подходят для вашего бизнеса
Что входит в отчёт
  • Охват населения
  • Пешеходный трафик
  • Автомобильный трафик
  • Средний бюджет семьи по району
  • Арендные ставки рядом
  • Точки притяжения
  • Конкуренты в радиусе 1 км
  • Рекомендации по выбору места для бизнеса
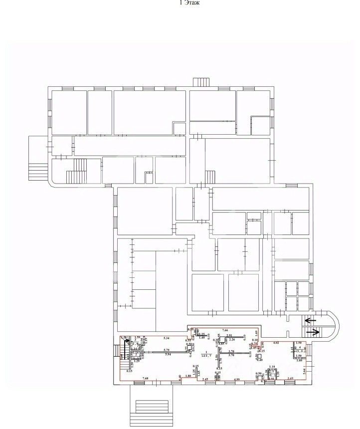
723164. Предлагаем торговое помещение с якорным арендатором Ростикс (КФС), площадью 309,1 кв. м., расположенное в административном здании. 1 и 2 этажи. Без комиссии для покупателя. Преимущества объекта: -первая линия ул. Советская, центр города Егорьевск; -развитая транспортная инфраструктура: выезд на Егорьевское шоссе в 3 км; -густонаселенный жилой район; -интенсивный пешеходный и автомобильный трафик; -объект отлично просматривается, находится в лёгком доступе для клиентов; -надежный сетевой арендатор; -открытая планировка; -витринное остекление; -место для вывески; -подключены все центральные коммуникации, канализация, жироуловители, ХВС; -земля в собственности; -наземная парковка; -вблизи остановка общественного транспорта. Технические параметры объекта: -2 отдельные входные группы; -площадь по этажам: 1 этаж: 131,3 кв. м., 2 этаж: 177,8 кв. м.; -электрическая мощность: 150 кВт; -высота потолков: 3 м. Информация об арендаторе: -арендатор: Ростикс (КФС); -доход: 460 000 руб./мес. Свяжитесь с нами для получения дополнительной информации!
lock

Войдите или зарегистрируйтесь
для просмотра информации

Просматривайте условия сделки и всю информацию об объекте
Сохраняйте фильтры в поиске и не вводите заново
Доступ к избранному с любого устройства
Неограниченное добавление в избранное
Позвоните автору
Вам ответят на все вопросы
Остались вопросы по объявлению?
Позвоните владельцу объявления и уточните необходимую информацию.
  • Инфраструктура
  • Похожие рядом
Помощь надёжных риелторов
Риелтор партнёр Циан поможет купить или продать любую недвижимость
55 000 000 ₽
722 866 $
615 135
Цена за метр
177 936 ₽
Налог
УСН
Агентство недвижимости
Документы проверены